Oshawa (eastdale), ON L1H1G5,640 King ST East #Basement
See all 2 photos
Oshawa (eastdale), ON L1H1G5,640 King ST East #Basement
REQUEST A TOUR If you would like to see this home without being there in person, select the "Virtual Tour" option and your agent will contact you to discuss available opportunities.
In-PersonVirtual Tour
Sat
29
Nov
Sun
30
Nov
Mon
1
Dec
Silvana Sicoli

Silvana Sicoli

Engel & Völkers

+1(613) 558-5428
$ 5
Save
Active

640 King ST East #Basement Oshawa (eastdale), ON L1H1G5

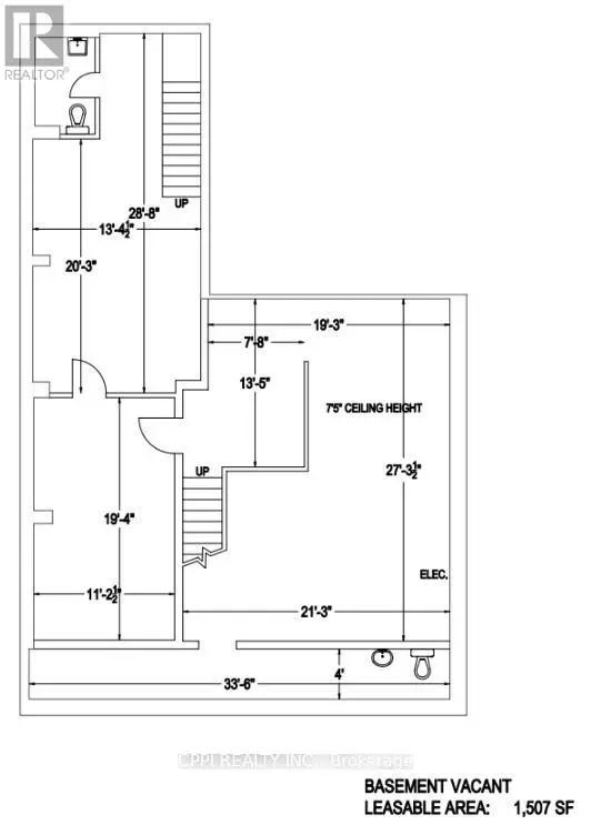
1,507 SqFt


UPDATED:

Key Details

Property Type Commercial

Listing Status Active

Purchase Type For Rent

Square Footage 1,507 sqft

Subdivision Eastdale

MLS® Listing ID E12240784

Source Toronto Regional Real Estate Board

Property Description

Presenting a prestigious leasing opportunity in the heart of Downtown Oshawa. This 1,507 sq. ft. retail space has its own front entrance. It is on high-traffic King Street East and is ideally suited for various retail purposes. Surrounded by prominent landmarks including the Durham Courthouse, YMCA, Holiday Inn, and the Tribute Communities Centre, and with ample street parking on two sides In this plaza. Estimated TMI @ $8 per sq. ft. (id:24570)

Location

Province ON

Rooms

Kitchen 0.0

Interior

Heating Forced air

Cooling None

Exterior

Parking Features No

View Y/N No

Private Pool No


Powered by: REALTOR.ca
Listed by CPPI REALTY INC.
Silvana Sicoli

Silvana Sicoli

+1(613) 558-5428

GET MORE INFORMATION

Name
Phone*
Message

Go tour this home

640 King ST East #Basement