REQUEST A TOUR If you would like to see this home without being there in person, select the "Virtual Tour" option and your agent will contact you to discuss available opportunities.
In-PersonVirtual Tour

$ 1,980,000
Est. payment /mo
Active
8120 ALASKA ROAD Fort St. John, BC V1J0P3
0.66 Acres Lot
UPDATED:
Key Details
Property Type Commercial
Listing Status Active
Purchase Type For Sale
MLS® Listing ID C8037406
Year Built 2020
Lot Size 0.660 Acres
Acres 0.66
Source BC Northern Real Estate Board
Property Description
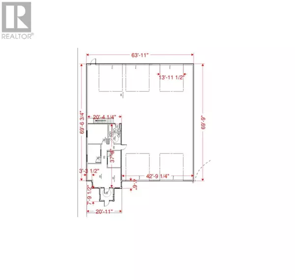
For Sale or For Lease. You cant beat the exposure your business will receive with this Highway frontage shop next to T&T communication. The size and layout can be altered to suit your needs. Currently this plan includes a total of 4,912 sq ft. with a mixture of shop and office. See photos to see the floor plan concept. This has a proposed lot of 0.66 of acre with 2 more adjoining lots available for a total of 2.2 acres. Excellent visibility off of the Alaska Highway and extra parking on frontage road. 2 additional adjoining parcels on East side of this parcel include 8104 .75 of acre with MLS #C8037469 and 8008 also .75 of acre available for a total of 2.2 acres. Lease instead of purchase options are also available. (id:24570)
Location
Province BC
Rooms
Kitchen 0.0
Interior
Cooling Central air conditioning
Exterior
Parking Features No
View Y/N No
Private Pool No






